Proiecte publice
Primăria Iași vrea să transforme fosta groapă de gunoi de la Tomești într-un parc fotovoltaic
Municipalitatea ieșeană va demara un proiect pentru realizarea unui nou parc fotovoltaic. În ședința Consiliului Local de mâine, aleșii vor decide preluarea fostului depozit de deșeuri de la Tomești, aflat în prezent în administrarea Consiliului Județean (CJ) Iași, iar intenția declarată a instituției este de a monta panouri fotovoltaice.
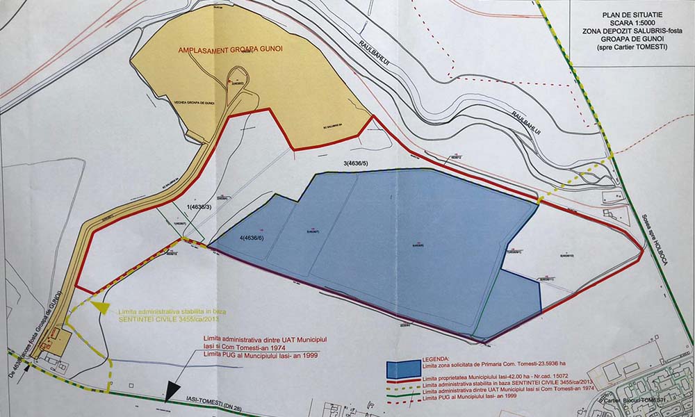
Terenul, cu o suprafață de peste 15 hectare (153.641 mp), a fost utilizat de CJ în cadrul proiectului privind sistemul de management al deșeurilor, în urma căruia s-au investit peste 18 milioane lei pentru închiderea și ecologizarea gropii neconforme. Alături de cele 15 ha, Primăria are în aceeași zonă o suprafață de 42 ha. Astfel se creează premisele unei investiții mai mari, în condițiile în care zona are preponderent un caracter industrial și logistic.
- Citește și Tomeștiul pierde procesul cu Iașul: 24 ha de pe teritoriul comunei sunt în proprietatea municipiului

„În vederea inițierii documentelor necesare implementării unui proiect de amplasare a unor panouri fotovoltaice pe terenul de la Tomești (…) este necesară trecerea în administrarea Consiliului Local a terenului pe care este amplasat depozitul de deșeuri menajere Tomești”, se precizează în proiectul de hotărâre ce urmează să fie dezbătut vineri în plenul Consiliul Local Iași în vederea preluării amplasamentului din Tomești.
Deși Consiliul Județean a decis încă din 2017 să cedeze terenul către Primărie, transferul nu s-a concretizat până acum. Municipalitatea a solicitat oficial restituirea la începutul lunii octombrie 2025. După votul din CL, protocolul de predare-primire între cele două instituții ar urma să fie semnat în termen de 30 de zile.
Primăria are în plan dezvoltarea mai multor proiecte fotovoltaice. Un exemplu este investiția pregătită la CET Holboca, unde se derulează o licitație publică de peste 40 milioane lei pentru montarea a circa 14.000 de panouri solare. Ofertele vor fi deschise la jumătatea lunii noiembrie.









