Investiții private
Complex hotelier pe malul Lacului Ciric: investitorul are în proprietate un hectar
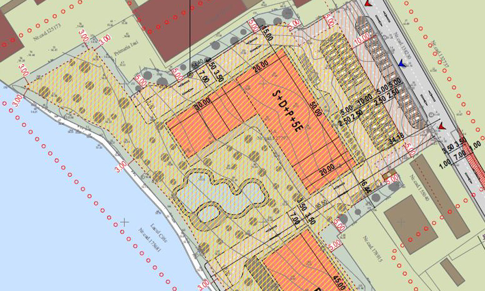
Firma Megastep a intrat pe ultima sută de metri în obținerea tuturor avizelor necesare aprobării unui plan urbanistic pentru construirea unui complex hotelier pe malul Lacului Ciric. Unitatea de cazare este propusă cu un regim pe opt niveluri: subsol, demisol, parter și 5 etaje, în condițiile unei suprafețe desfășurate a imobilului de peste 20.000 mp.
„Conform solicitării de aviz de tăiere, pe teren erau 80 exemplare de arbori din diferite specii (stejar, frasin, salcie). Unii arbori erau uscați și scorburoși. În prezent, terenul este liber de construcții, liber de vegetație. Se mai găsesc câțiva arbori care au fost păstrați pentru a fi integrați în viitoarea investiție, în zona de spațiu verde”, se arată în documentația depusă la instituțiile de resort.

Unitatea de cazare va fi deservită de o parcare cu 272 de locuri, dar acest număr este orientativ, potrivit investitorului: numărul final va fi stabilit la momentul depunerii dosarului pentru obținerea autorizației de construire. Firma Megastep SRL este controlată de Marius Pătrașcu, un dezvoltator imobiliar din Iași, apropiat al unor politicieni.

Accesul la teren este prevăzut pe o stradă de pe latura nord-estică a terenului. „În prezent, problemele legate de fluența circulației sunt redate de starea neconformă a profilului străzii și lipsa trotuarelor pietonale”, se arată în documentația urbanistică. Strada are sens dublu, cu o lățime de 5,8 metri.
Imobilul propus pe amplasament ca avea o amprentă la sol de peste 4.000 mp. Circulațiile și spațiile verzi vor ocupa, fiecare, câte 3.000 mp. Înălțimea maximă a clădirii este propusă la 21 metri. Lângă hotel ar urma să fie făcute și alte amenajări, inclusiv agrement și sport.
După obținerea avizelor necesare, proiectul va face obiectul dezbaterii în plenul Consiliului Local și, ulterior, investitorul va putea depune documentația pentru obținerea autorizației.







